Overview
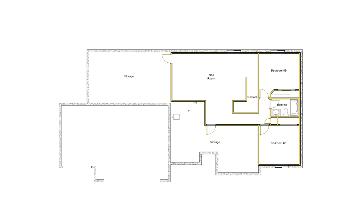
Our newest floorplan! New Construction 4 bedrooms on main level, unfinished basement. Wonderful living area and roomy master suite. Dedicated laundry with drop station. 3 Car Garage.
Features
- 1,685 SF
- Optional basement finsih 918SF
- Split Bedroom Design
- 4 Bedrooms Main Level
- 3 Car Garage




